WONINGEN ZOEKEN
- Back to Search
- Huis
- Costa Blanca
- Costa Blanca Noord
- Moraira
- Moderne stijl villa in aanbouw in Moraira
Moderne stijl villa in aanbouw in Moraira
- €1.475.000
- Villa
- Woningtype
- 3
- Slaapkamers
- 3
- Badkamers
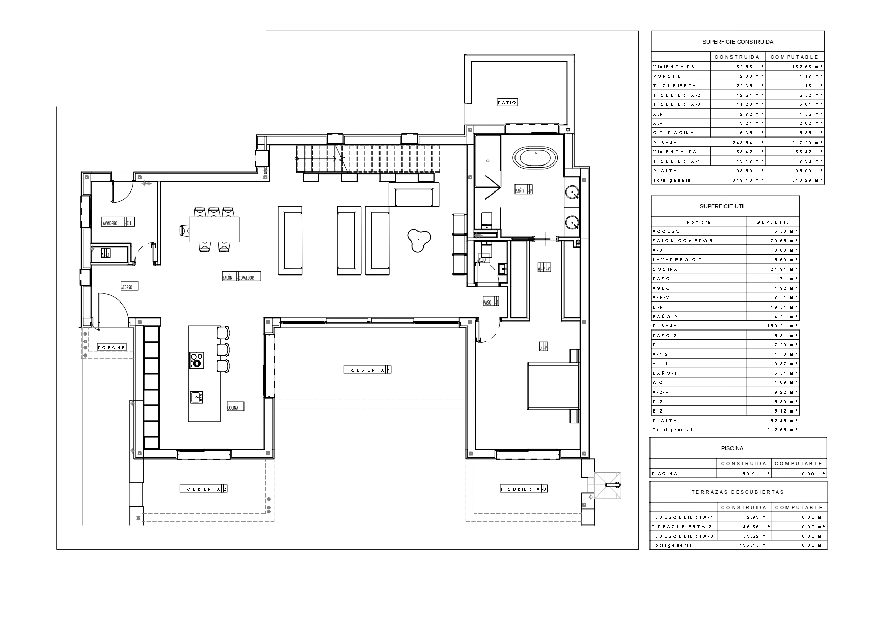
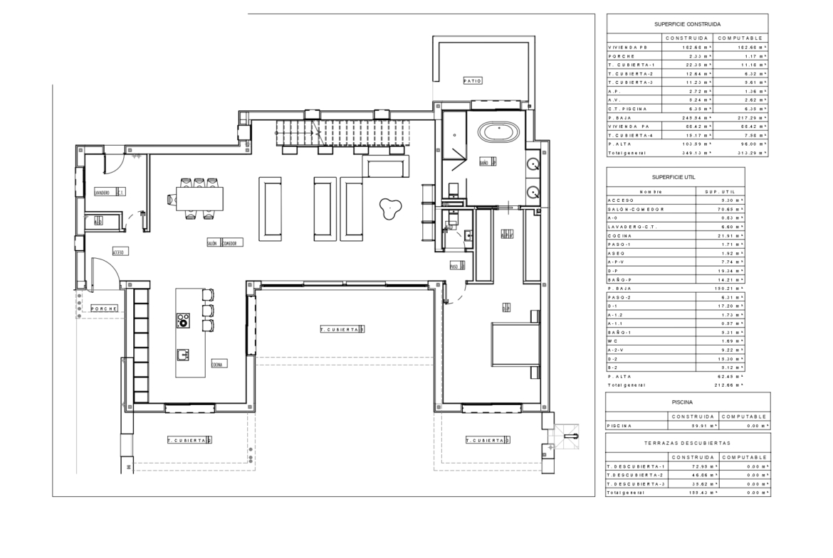
- 349 m²
- Bebouwd
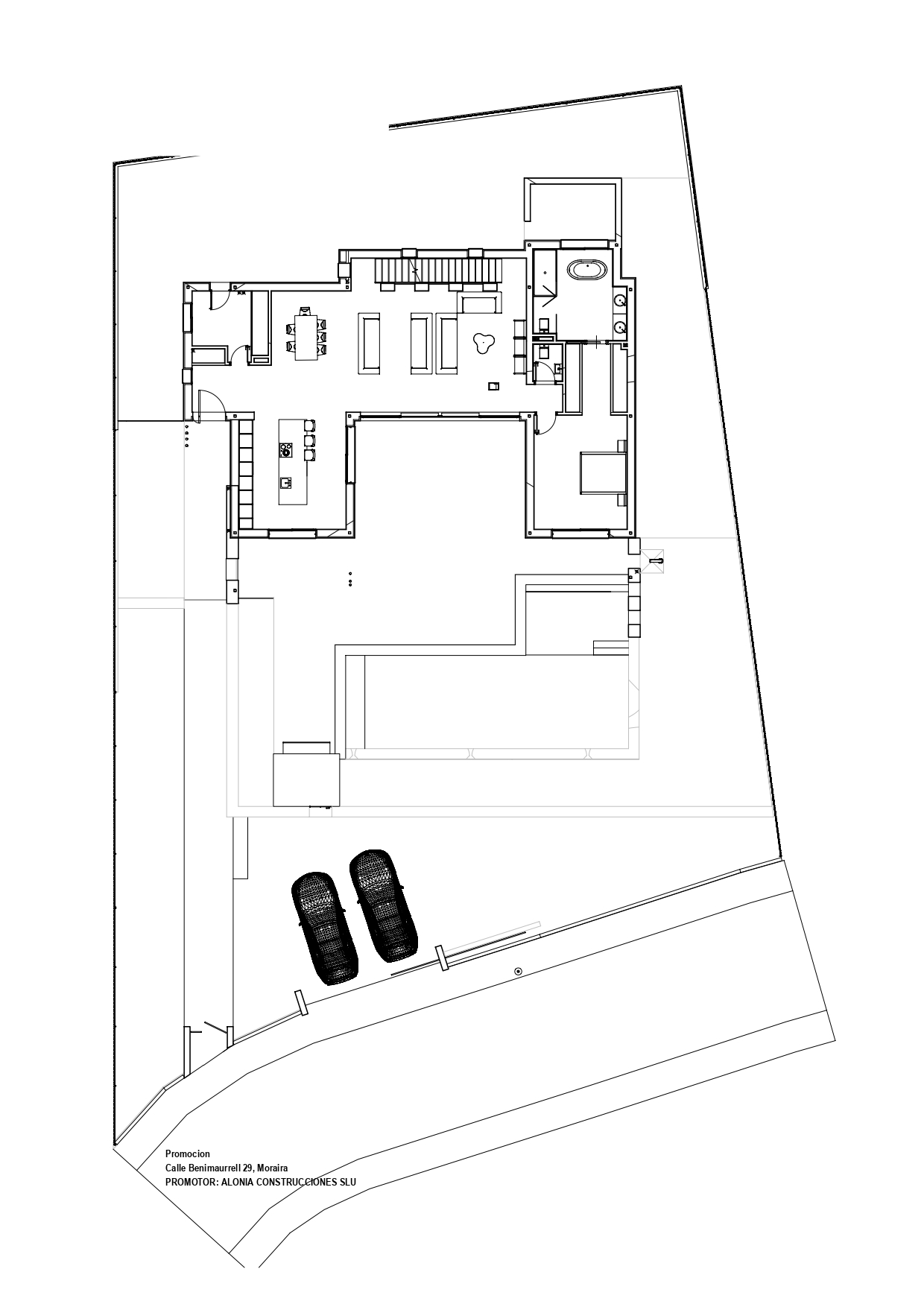
- 1000 m²
- Perceel
Beschrijving van de woning
Ref: DP-20-D25415
Schitterende villa in aanbouw in Moraira – oplevering mei 2026.
Wil je niet lang wachten op je eigen nieuwbouw villa in Moraira?
Deze casco staat te wachten op zijn nieuwe eigenaar die vanaf 1 mei 2026 de sleutel wil hebben.
De grote schuifpuien van deze in aanbouw zijnde villa (zuid-oriëntatie) openen je woonkamer volledig naar het terras, waardoor je leeft alsof binnen en buiten één geheel vormen. Vanuit je zithoek kijk je uit over het strakke zwembad dat langs de voorkant van de villa loopt.
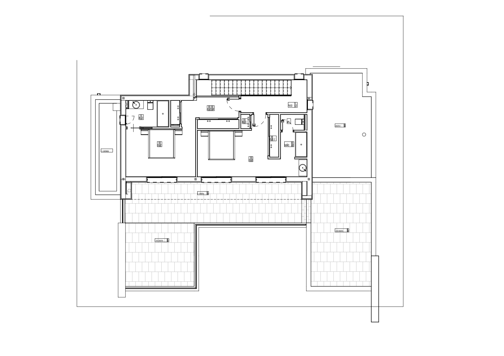
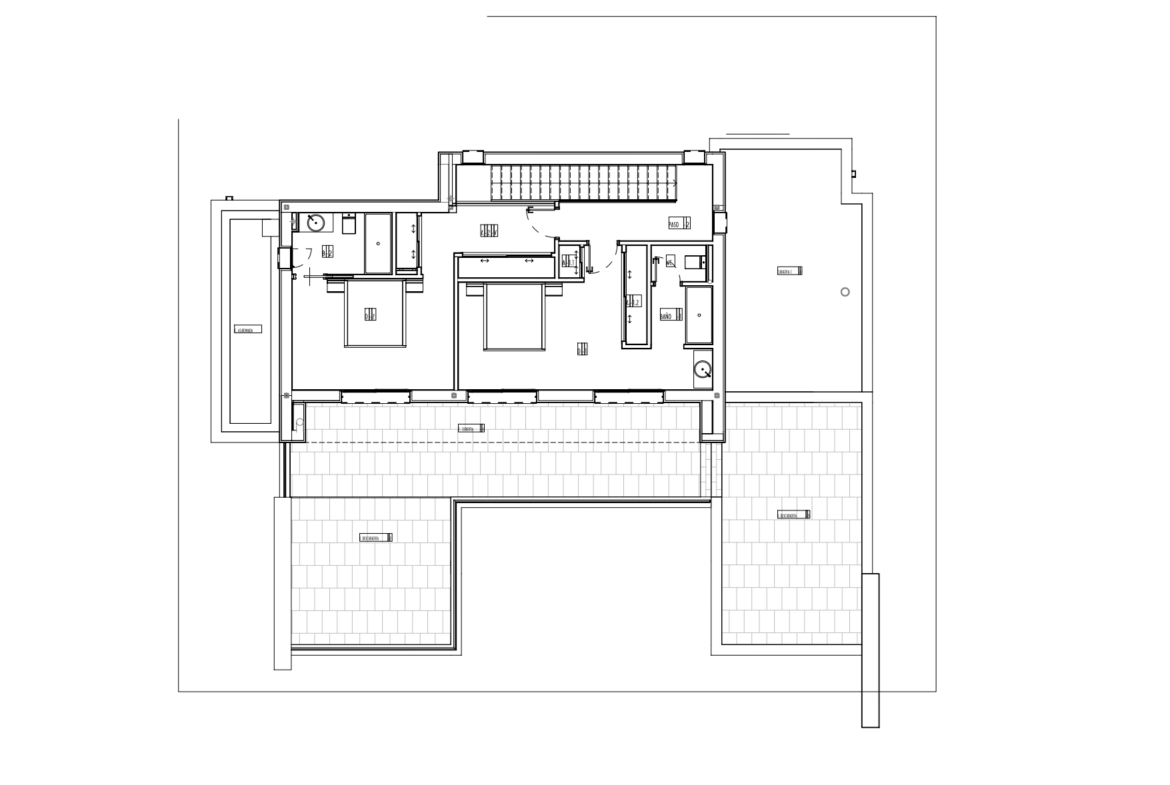
Je keuken grenst direct aan het terras, ideaal voor lange zomerlunches en avonden buiten. Op de begane grond ligt je eigen master suite met badkamer en dressing, rustig gepositioneerd aan de tuinzijde. Boven vind je twee ruime slaapkamers, beide met toegang tot een groot terras met vrij uitzicht.
De tuin en terrassen zijn ontworpen voor het mediterrane buitenleven: brede loungespaces, kleurrijke beplanting en volop zon en privacy. Dit is een villa waar je elke dag het vakantiegevoel binnenstapt, op een plek waar rust en bereikbaarheid perfect in balans zijn.
Doordat de woning nog in casco staat zijn er nog aantal zaken binnen de villa te kiezen en dus naar smaak te maken voor de nieuwe eigenaar.
De villa ligt in een rustige woonwijk op 3-4 minuten rijden van het centrum van Moraira waar je alles kunt vinden wat je nodig hebt zoals supermarkten, winkels en restaurants.
Interesse? Laat het ons weten en we laten hem graag aan je zien, nog geen 5 minuten van ons Spaanse Droomhuizen kantoor in Moraira.
Als koper betaal je bij ons géén commissie, dus maak gebruik van onze ruim 10 jaar lange ervaring als aankoopmakelaar! Spaanse Droomhuizen is gecertificeerd makelaar, meer info via deze link. We hebben al veel klanten door de jaren heen mogen helpen, check hier onze recensies.
Prijs exclusief aankoopkosten. Ga uit van ±10% overdrachtsbelasting (exact percentage afhankelijk van de regio; bij nieuwbouw geldt in plaats daarvan 10% BTW, landelijk vastgesteld), ±1–2% advocaatkosten, ±1% notariskosten en bij nieuwbouw 1,5% registratiekosten (AJD).
Kenmerken
-
Ref: DP-20-D25415
-
Prijs: €1.475.000
-
Bebouwd: 349 m²
-
Perceel: 1000 m²
-
Slaapkamers: 3
-
Badkamers: 3
-
Woningtype: Villa
Locatie van de woning (bij benadering)
De locatie op de kaart is alleen bedoeld ter indicatie en geeft geen exacte locatie aan. Op de kaart zie je de dichtstbijzijnde plaats waar de woning zich bevindt. Voor meer informatie kun je contact opnemen via het contactformulier.
Vergelijkbare woningen
Villa te koop in Javea
DP-40-4643JAV Javea, Alicante- Slaapkamers: 3
- Badkamers: 3
- 150 m²
- 1000 m²
- Villa
Prachtige Moderne Villa met Zee- en Bergzicht in Mijas Costa
DP-12-R5362192 Calahonda, Málaga- Slaapkamers: 4
- Badkamers: 3
- 274 m²
- 670 m²
- Villa
Vergelijkbare woningen
Villa te koop in Javea
DP-40-4643JAV Javea, Alicante- Slaapkamers: 3
- Badkamers: 3
- 150 m²
- 1000 m²
- Villa
Prachtige Moderne Villa met Zee- en Bergzicht in Mijas Costa
DP-12-R5362192 Calahonda, Málaga- Slaapkamers: 4
- Badkamers: 3
- 274 m²
- 670 m²
- Villa
Contact me















