WONINGEN ZOEKEN
- Huis
- Costa Blanca
- Costa Blanca Noord
- Benissa
- Moderne nieuwbouw villa vlakbij strand in Benissa
Moderne nieuwbouw villa vlakbij strand in Benissa
- €1.495.000
- Villa
- Woningtype
- 3
- Slaapkamers
- 3
- Badkamers
- 193 m²
- Bebouwd
- 1350 m²
- Perceel
Beschrijving van de woning
Ref: DP-40-4446BEN
Modern Villaproject in Benissa Costa – Slechts 5 Minuten van Strand La Fustera
Laat je betoveren door dit strakke en stijlvolle villaproject met privézwembad, gelegen in een moderne woonwijk op een steenworp afstand van het idyllische strand La Fustera. Dit project combineert hedendaags design, hoogwaardige afwerking en een uitstekende ligging, waardoor het een ideale keuze is voor wie op zoek is naar comfort en luxe aan de Costa Blanca.
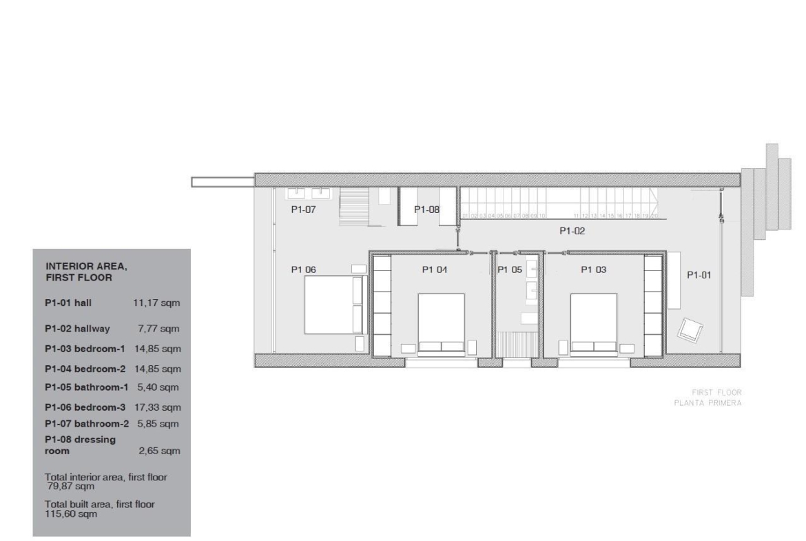
De villa biedt een slimme indeling verdeeld over twee verdiepingen. Op de benedenverdieping vind je een ruime en lichte woon-eetkamer, die dankzij grote schuiframen direct toegang geeft tot het terras en het zwembad. De moderne open keuken is volledig geïntegreerd in de leefruimte, waardoor koken en samenzijn perfect samengaan. Een glazen schuifdeur leidt naar een gezellige patio van 38 m², een rustgevende plek om te ontspannen of te genieten van het buitenleven. Daarnaast is er een stijlvol gastentoilet, wat bijdraagt aan het comfort en de functionaliteit van deze verdieping.
Op de bovenverdieping bevindt zich de hoofdslaapkamer met een eigen en suite badkamer, een luxe toevluchtsoord om volledig tot rust te komen. Naast de hoofdslaapkamer zijn er twee ruime tweepersoonsslaapkamers die een moderne badkamer delen, ideaal voor gasten of gezinsleden. De grote raampartijen in alle slaapkamers zorgen voor veel natuurlijk licht en een verbinding met de omringende natuur.
Het villaproject is ontworpen met oog voor detail en gebruik van hoogwaardige materialen. Alle kamers zijn voorzien van een efficiënte airconditioninginstallatie met onafhankelijke temperatuurregeling, wat zorgt voor een optimaal binnenklimaat. De dubbele beglazing met koudebrugonderbreking en porseleinen vloeren – beschikbaar in cementgrijs of beige – dragen bij aan het moderne en hoogwaardige karakter van de woning.
De ligging van deze villa is simpelweg perfect. Het vlakke perceel bevindt zich in een moderne woonwijk met uitstekende infrastructuur en grotere percelen dan gemiddeld, wat meer privacy en ruimte biedt. Slechts 1,9 km verwijderd van het zandstrand La Fustera, geniet je van een unieke combinatie van rust en nabijheid van voorzieningen, restaurants en recreatie.
Deze villa is een unieke kans om te investeren in een modern droomhuis dat perfect aansluit bij het mediterrane leven. Met zijn strakke lijnen, doordachte ontwerp en prachtige locatie biedt deze woning alles wat je nodig hebt voor een luxueus en ontspannen leven aan de Costa Blanca. Neem vandaag nog contact met ons op voor meer informatie of om de mogelijkheden van dit bijzondere project te ontdekken!
Als koper betaal je bij ons géén commissie, dus maak gebruik van onze ruim 10 jaar lange ervaring als aankoopmakelaar! Spaanse Droomhuizen is gecertificeerd makelaar, meer info via deze link. We hebben al veel klanten door de jaren heen mogen helpen, check hier onze recensies.
Kenmerken
-
Ref: DP-40-4446BEN
-
Prijs: €1.495.000
-
Bebouwd: 193 m²
-
Perceel: 1350 m²
-
Slaapkamers: 3
-
Badkamers: 3
-
Woningtype: Villa
Locatie van de woning (bij benadering)
De locatie op de kaart is alleen bedoeld ter indicatie en geeft geen exacte locatie aan. Op de kaart zie je de dichtstbijzijnde plaats waar de woning zich bevindt. Voor meer informatie kun je contact opnemen via het contactformulier.
Vergelijkbare woningen
Villa te koop in Javea
DP-40-OFFC3XY4639JAV Javea, Alicante- Slaapkamers: 5
- Badkamers: 3
- 235 m²
- 1488 m²
- Villa
Gerenoveerde begane grond studio te koop in Valencia stad
DP-20-D26080 Valencia, Costa Valencia, Spanje- Slaapkamer: 1
- Badkamer: 1
- 34 m²
- Appartement
Vergelijkbare woningen
Villa te koop in Javea
DP-40-OFFC3XY4639JAV Javea, Alicante- Slaapkamers: 5
- Badkamers: 3
- 235 m²
- 1488 m²
- Villa
Gerenoveerde begane grond studio te koop in Valencia stad
DP-20-D26080 Valencia, Costa Valencia, Spanje- Slaapkamer: 1
- Badkamer: 1
- 34 m²
- Appartement
Contact me



















