WONINGEN ZOEKEN
- Perceel
- Woningtype
- 0, 0
- Slaapkamer
Beschrijving van de woning
Ref: DP-47-PLVM
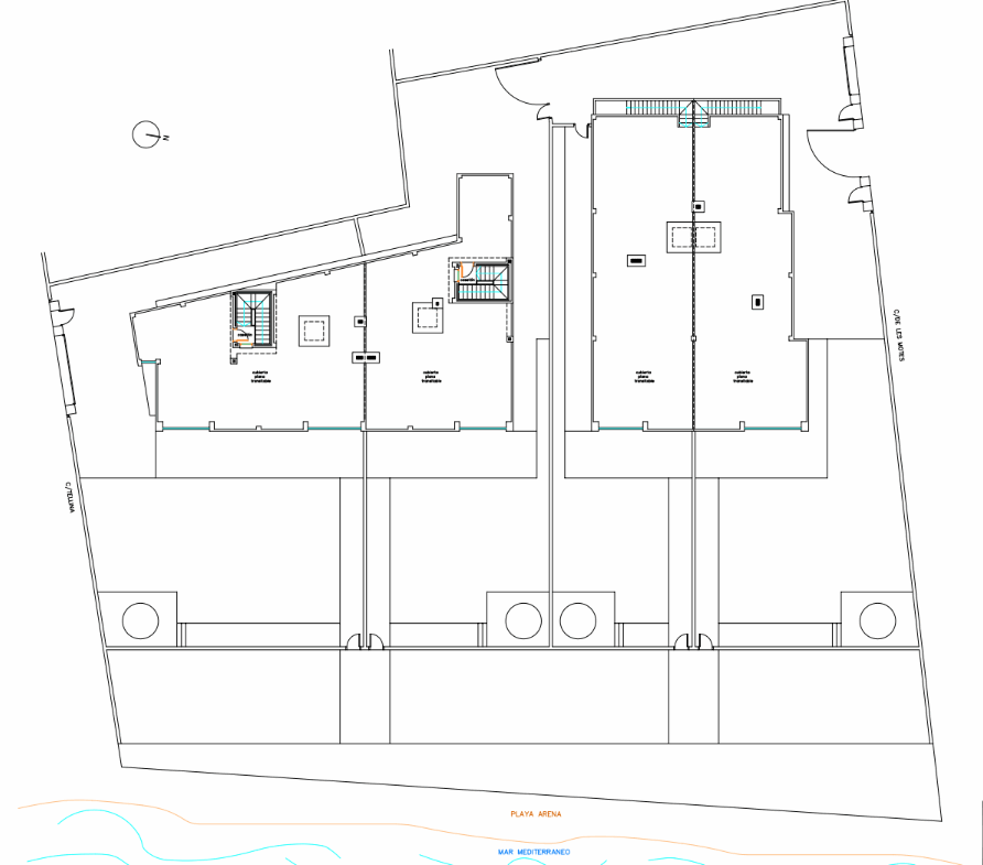
The plot is located in Cullera, on the sea front, the plot has access by two streets and faces directly to the sand beach. The topography is flat. The plot is fenced in both streets and with the neighbors of the back (West boundary).Urban planning rules: The site is located in urban land, in an environment consolidated by the building, fully urbanized since it has all the urban services (road access, sidewalks curb, public lighting, wastewater evacuation, electrical connection and potable water connection). Urban Land, within the Single Family Housing Area (UFA), - residential, single-family housing in row. Requirements: – 1040 m2 building area. Maximum occupation of plot: 30% -Separation to lateral boundaries: 3’00 m -Spacing to street: 5’00 m -Construct a maximum of one house per 200 m2 of plot. -Each house will have a linked plot of minimum surface area of 125 m2, of which 40 m2 will be free of construction. -The minimum separation between blocks of independent houses will be 5 m. -The maximum length of a block or row of attached houses can not be more than 35 m. -No of blankets allowed: 2 floors. -Height of Cornice: 7’00 m. -The net building capacity of the Solar is 0.50 m2 / m2. The maritime terrestrial line is located next to the wall that delimits the plot with the beach, as can be seen in the plan of situation referred to planning, so the building that is built will have to be separated from this line 20 m (limit of building indicated by Costas), which is the dashed line that appears in said plane crossing the site. This front surface can be used as a garden or swimming pool of the building that is built. Building that can be built: floor area of 0.5 m2 / m2, that a total of 1,133’50 m2 of roof can be built.
Als koper betaal je bij ons géén commissie, dus maak gebruik van onze ruim 10 jaar lange ervaring als aankoopmakelaar! Spaanse Droomhuizen is gecertificeerd makelaar, meer info via deze link. We hebben al veel klanten door de jaren heen mogen helpen, check hier onze recensies.
Kenmerken
-
Ref: DP-47-PLVM
-
Prijs: €2.800.000
-
Perceel: 2267 m²
-
Woningtype: Perceel
Locatie van de woning (bij benadering)
De locatie op de kaart is alleen bedoeld ter indicatie en geeft geen exacte locatie aan. Op de kaart zie je de dichtstbijzijnde plaats waar de woning zich bevindt. Voor meer informatie kun je contact opnemen via het contactformulier.
Vergelijkbare woningen
Villa te koop in Moraira
DP-40-8311MOR Moraira, Alicante- Slaapkamers: 5
- Badkamers: 5
- 706 m²
- 1835 m²
- Villa
Villa te koop in Marbella
DP-12-R5217931 Marbella, Málaga- Slaapkamers: 12
- Badkamers: 12
- 518 m²
- 9000 m²
- Villa
Vergelijkbare woningen
Villa te koop in Moraira
DP-40-8311MOR Moraira, Alicante- Slaapkamers: 5
- Badkamers: 5
- 706 m²
- 1835 m²
- Villa
Villa te koop in Marbella
DP-12-R5217931 Marbella, Málaga- Slaapkamers: 12
- Badkamers: 12
- 518 m²
- 9000 m²
- Villa
Contact me















