WONINGEN ZOEKEN
- Villa
- Woningtype
- 4
- Slaapkamers
- 6
- Badkamers
- 535 m²
- Bebouwd
- 1252 m²
- Perceel
Beschrijving van de woning
Ref: DP-40-4380ALT
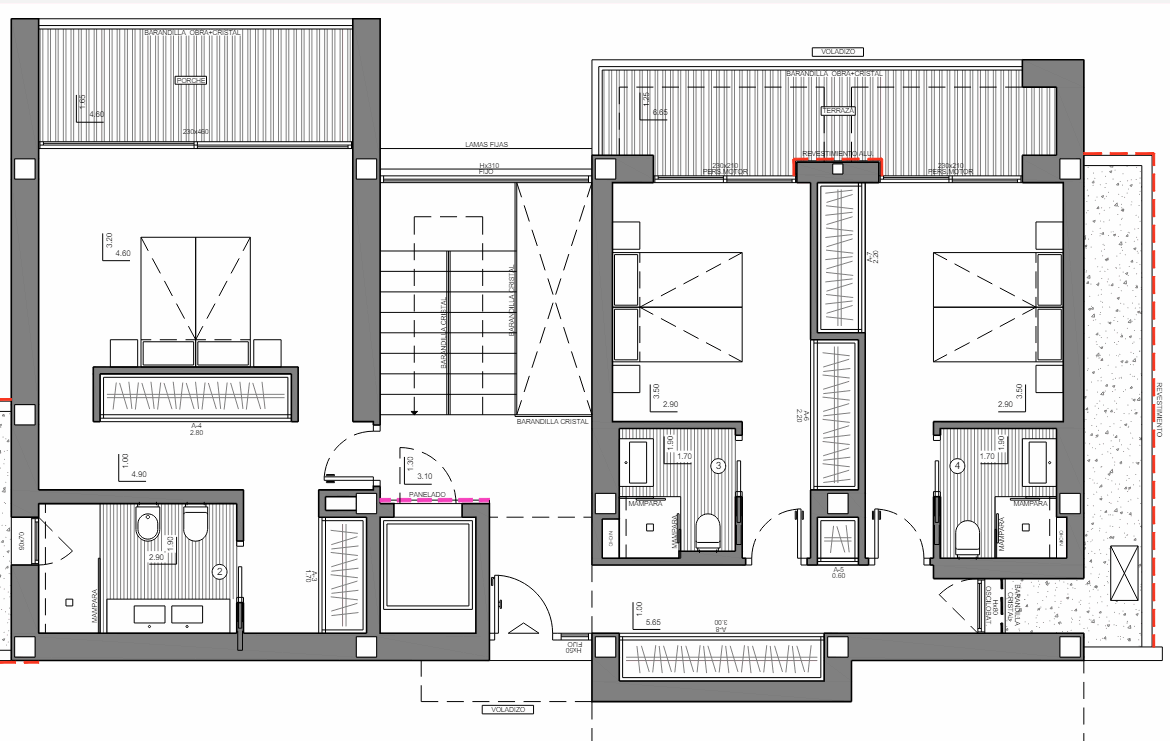
Deze moderne villa is volledig gemeubileerd en sleutelklaar om meteen in te trekken. Met een prachtige locatie in de Sierra de Altea kunt u genieten van een fantastisch panoramisch zeezicht. De villa is verdeeld over drie verdiepingen. De bovenste verdieping herbergt een garage voor twee auto's en de inkomhal die ons verbindt met de rest van het huis. Op de middelste verdieping bevinden zich drie van de vier slaapkamers van dit huis: twee ruime hoofdslaapkamers en twee extra slaapkamers. Een van de hoofdslaapkamers biedt een prachtig uitzicht op zee, heeft toegang tot een privéterras, en beschikt over een en-suite badkamer en een kleedkamer. De andere twee slaapkamers hebben ook elk een eigen badkamer, ruime kasten en delen een gemeenschappelijk terras. Bovendien zijn er extra kasten beschikbaar in de gang.
De begane grond is verdeeld in twee zones, gescheiden door de hal en de trap. Aan de ene kant bevindt zich de vierde slaapkamer met een eigen badkamer, kleedruimte en toegang tot het hoofdterras met veranda. De andere zone omvat een gastentoilet, een open keuken verbonden met de eetkamer, compleet met een centraal kookeiland en ontbijthoek, en een lichte woonkamer met toegang tot de veranda. Buiten is er een groot terras en een overloopzwembad, van waar u van het prachtige uitzicht kunt genieten.
De villa is bovendien uitgerust met een lift, een beveiligingssysteem, vloerverwarming, airconditioning, technische verlichting en tuinruimtes. Ontwerp, uitrusting, kwaliteit en een adembenemend uitzicht op de Middellandse Zee wachten op u in Altea, aan de Costa Blanca Noord.
Als koper betaal je bij ons géén commissie, dus maak gebruik van onze ruim 10 jaar lange ervaring als aankoopmakelaar! Spaanse Droomhuizen is gecertificeerd makelaar, meer info via deze link. We hebben al veel klanten door de jaren heen mogen helpen, check hier onze recensies.
Kenmerken
-
Ref: DP-40-4380ALT
-
Prijs: €2.111.500
-
Bebouwd: 535 m²
-
Perceel: 1252 m²
-
Slaapkamers: 4
-
Badkamers: 6
-
Woningtype: Villa
Locatie van de woning (bij benadering)
De locatie op de kaart is alleen bedoeld ter indicatie en geeft geen exacte locatie aan. Op de kaart zie je de dichtstbijzijnde plaats waar de woning zich bevindt. Voor meer informatie kun je contact opnemen via het contactformulier.
Vergelijkbare woningen
Villa te koop in Valencia
DP-18-0544 Valencia, Valencia- Slaapkamers: 3
- Badkamer: 1
- 105 m²
- Villa
Vergelijkbare woningen
Villa te koop in Valencia
DP-18-0544 Valencia, Valencia- Slaapkamers: 3
- Badkamer: 1
- 105 m²
- Villa
Contact me







































