WONINGEN ZOEKEN
Beschrijving van de woning
Ref: DP-52-V5159266
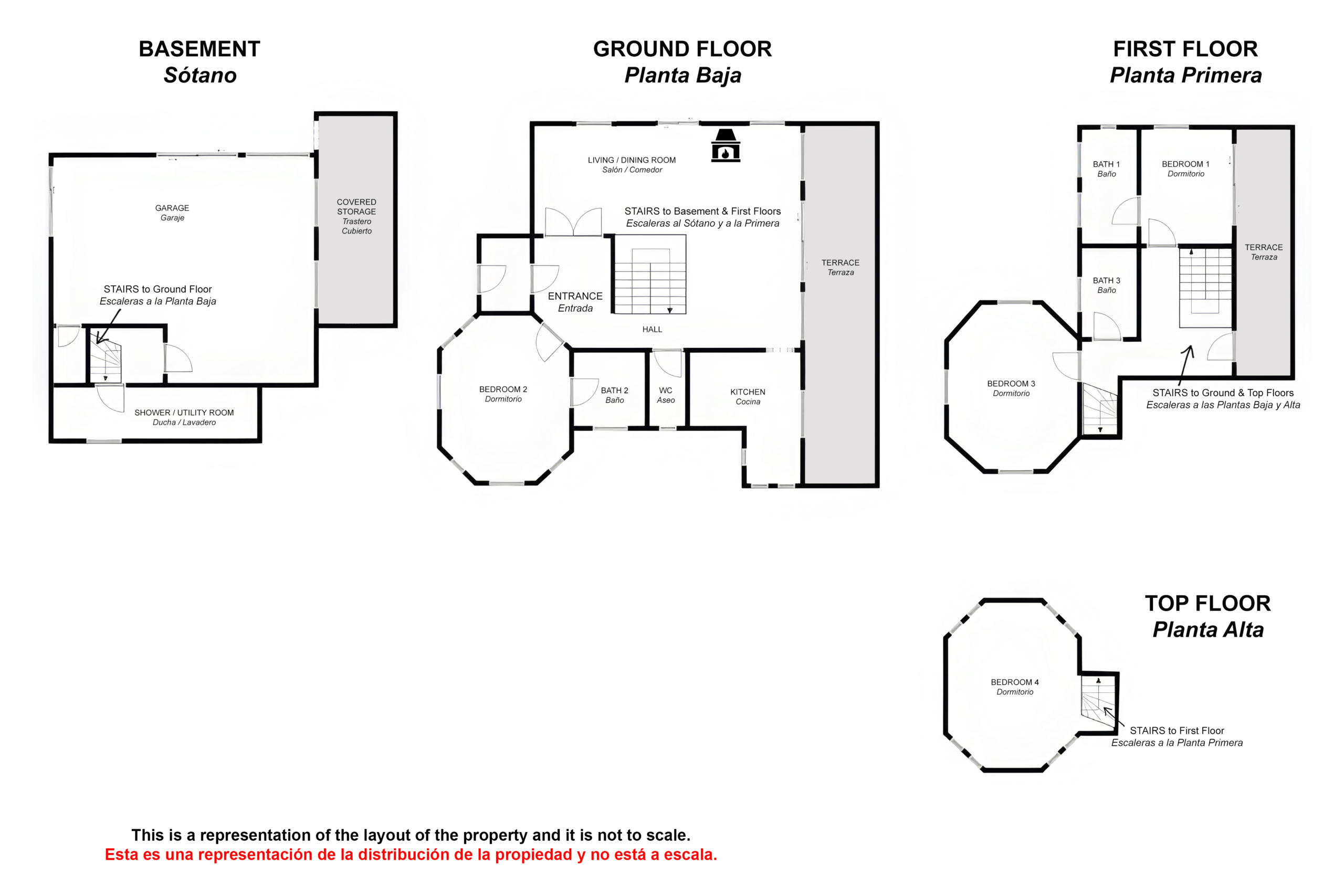
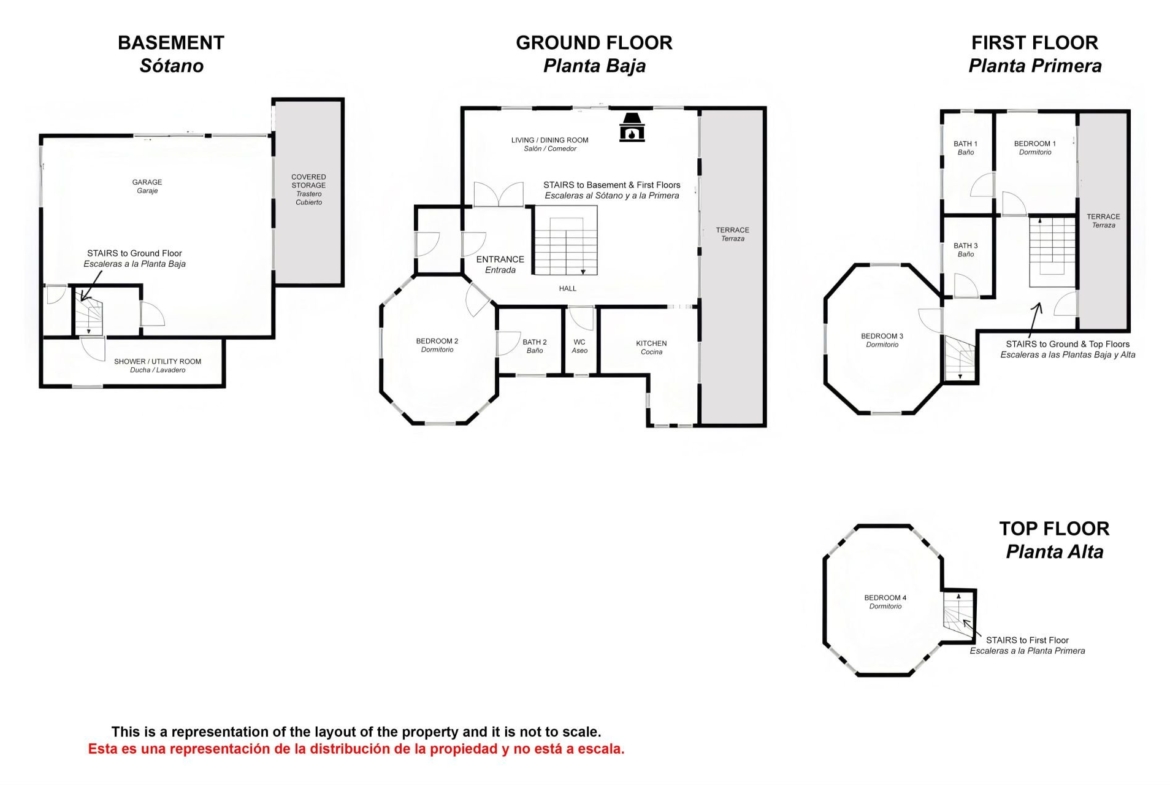
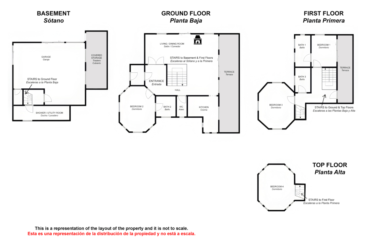
Een prachtige en ruime vrijstaande villa met 4 slaapkamers en 3 badkamers, gelegen in een populaire en rustige urbanisatie nabij Coín. Het huis heeft een volledig ingerichte keuken, een grote woonkamer met een open haard en is voorzien van airconditioning en ingebouwde kasten. Daarnaast beschikt het over een ruime garage met opslagruimte, een privézwembad, een privétuin en open terrassen. De makelaar verstrekt deze informatie namens de verkoper uitsluitend ter informatie en deze is niet contractueel bindend. Hoewel alles in het werk is gesteld om de juistheid van de informatie te waarborgen, dienen kopers alle gegevens zelf te controleren door middel van eigen inspecties en navraag. De gegevens kunnen zonder voorafgaande kennisgeving worden gewijzigd, prijzen kunnen worden aangepast en objecten kunnen worden verkocht of van de markt worden gehaald.
Als koper betaal je bij ons géén commissie, dus maak gebruik van onze ruim 10 jaar lange ervaring als aankoopmakelaar! Spaanse Droomhuizen is gecertificeerd makelaar, meer info via deze link. We hebben al veel klanten door de jaren heen mogen helpen, check hier onze recensies.
Kenmerken
-
Ref: DP-52-V5159266
-
Prijs: €629.000
-
Bebouwd: 223 m²
-
Perceel: 600 m²
-
Slaapkamers: 4
-
Badkamers: 4
-
Woningtype: Villa
Locatie van de woning (bij benadering)
De locatie op de kaart is alleen bedoeld ter indicatie en geeft geen exacte locatie aan. Op de kaart zie je de dichtstbijzijnde plaats waar de woning zich bevindt. Voor meer informatie kun je contact opnemen via het contactformulier.
Vergelijkbare woningen
Villa te koop in Moraira
DP-62-D220300 Moraira, Alicante- Slaapkamers: 4
- Badkamers: 4
- 600 m²
- 1500 m²
- Villa
Villa te koop in Moraira
DP-62-D400946 Moraira, Alicante- Slaapkamers: 5
- Badkamers: 4
- 707 m²
- 1500 m²
- Villa
Vergelijkbare woningen
Villa te koop in Moraira
DP-62-D220300 Moraira, Alicante- Slaapkamers: 4
- Badkamers: 4
- 600 m²
- 1500 m²
- Villa
Villa te koop in Moraira
DP-62-D400946 Moraira, Alicante- Slaapkamers: 5
- Badkamers: 4
- 707 m²
- 1500 m²
- Villa
Contact me





































